空き家情報バンク
登録物件一覧 Registration housing list
登録物件数:21件
物件に関する詳細は下記までお問い合わせください。
若狭町住活なんでも窓口 若狭町次世代定住促進協議会(役場観光まちづくり課内)
- 電話番号:0770-45-9112
- ファックス:0770-45-1115
- メール:下記のメールリンクから送信してください。
【注意事項】
- 若狭町空き家情報バンク(以下「本ホームページ」という。)は、所有者または不動産関係事業者からの情報を掲載したもので、掲載情報及び内容を保証するものではありません。
- 若狭町は、利用者が本ホームページによって被った損害、損失に対していかなる場合でも一切の責任を負いません。
- 購入または賃貸を希望する方は、必ず不動産関係事業者に詳細を確認のうえ交渉してください。
神谷【154】(新着物件)
建物外観現況写真
物件詳細
| 売買 | 3,800,000円 |
| 賃貸 | − |
三田【153】(新着物件)
建物外観現況写真
建物内観現況写真
間取り
物件詳細
| 売買 | 3,800,000円 |
| 賃貸 | 60,000円(月額) |
横渡【152】(新着物件)(商談中)
建物現況写真
間取り図
物件詳細
希望価格
| 売買 | 5,000,000円 |
| 賃貸 | − |
海士坂【151】(新着物件!)
建物外観1
建物外観2
納屋外観
蔵外観
倉庫車庫外観
居間
1F 和室1
1F 和室2
1F 和室3
1F 和室4
2F 洋室
キッチン
システムキッチン
トイレ
浴室
脱衣室
1階 見取図
2階 見取図
| 賃貸・売却の別 | 売却 |
|---|---|
| 希望金額 |
7,500,000円 |
| 物件種類 | 一般住宅 |
| 敷地面積 | 635.82平方メートル |
| 建築面積 |
1階:147.50平方メートル(82.39坪) |
| 間取り | 6LDK |
| 築年数 | 築45年 |
| 製造/階 | 木造2階建 |
| 駐車スペース | 駐車スペース6台 |
| 設備など | 上水道:町上水道 下水道:町下水道 |
物件情報
- 水回り(キッチン、浴室、洗面脱衣室、トイレ)改装済 ※H28
- 敷地約192坪
- 別棟(納屋、蔵、倉庫、車庫、外付けトイ)有り ※未登記家屋有り
- 住宅診断実施済 ※平成27年実施済み(母屋)
周辺情報
- 駅から3km
南前川【150】
建物写真
間取り図
物件詳細
希望価格
| 売買 | 6,000,000円 |
| 賃貸 | − |
熊川【149】(商談中)
建物外観1
建物外観2
建物内観1
建物内観2
間取り(1階)
間取り(2階)
熊川【149】間取り(1階) (JPEG: 213.7KB)
物件情報
| 賃貸・売却の別 | 売買 |
|---|---|
| 希望金額 |
100万円 |
| 物件種類 | 一般住宅 |
| 敷地面積 |
154.95平方メートル |
| 建築面積 |
1階:60.81平方メートル(18.39坪) 2階:29.9平方メートル(9.04坪) |
| 間取り |
1階:居間(5畳)、台所、風呂、トイレ、和室(2室) 2階:和室(2室) |
| 築年数 |
築46年 |
| 製造/階 |
木造2階建 |
| 駐車スペース | なし(一時的には1台) |
| 設備など | 上水道:町上水道 下水道:町下水道 |
物件情報
- 道の駅熊川が目の前にあり、熊川宿の入り口にあたる。
特記事項
- 現状引き渡し。
- 水回り(キッチン、浴室、洗面)の改修が必要で、床が一部劣化している。
- トイレは外トイレになっているが、宅内から直接出入りできる。
- 内部の残存物も含む。
周辺情報
- 駅(5.4キロメートル)
- バス停(0.3キロメートル)
- 町役場(上中庁舎)(5.4キロメートル)
- 病院(5.3キロメートル)
- コンビニ(4.3キロメートル)
- 商店(5.0キロメートル)
- 保育園(4.0キロメートル)
- 小学校(5.2キロメートル)
- 中学校(5.8キロメートル)
南前川【148】
建物外観1
建物外観2
建物外観3
建物外観4
建物内観1
建物内観2
建物内観3
建物内観4
建物内観5
| 賃貸・売却の別 | 売買または賃貸 |
|---|---|
| 希望金額 |
売買:95万円 賃貸:3万円(月額) |
| 物件種類 | 一般住宅 |
| 敷地面積 |
467.67平方メートル |
| 建築面積 |
1階:111平方メートル(33.6坪) 2階:23平方メートル(6.9坪) |
| 間取り |
居間(8畳)、台所、風呂、トイレ(汲取り)、和室(4室) |
| 築年数 |
− |
| 製造/階 |
木造2階建 |
| 駐車スペース | 2台 |
| 設備など | 上水道:町上水道 下水道:未加入 |
物件情報
- 6年ほど前から空家。
- 大幅な改修が必要。
特記事項
- 建物横にある物置も使用可。
周辺情報
- 駅(2.2キロメートル)
- バス停(1.5キロメートル)
- 町役場(1.8キロメートル)
- 病院(1.5キロメートル)
- ドラッグストア(0.2キロメートル)
- 商店(1.9キロメートル)
- 保育園(2.1キロメートル)
- 小学校(2.0キロメートル)
- 中学校(1.6キロメートル)
三方【146】(商談中)
建物写真
建物間取り

安賀里【144】(商談中)
建物外観1
建物外観2
建物外観3(土蔵)
間取り(1階)
間取り(2階)
| 賃貸・売却の別 | 賃貸 |
|---|---|
| 希望金額 |
5,000円(月額) |
| 物件種類 | 一般住宅 |
| 敷地面積 |
宅地: 747.71平方メートル 農地: 389平方メートル |
| 建築面積 |
1階:123.96平方メートル(35坪) 2階: 37.5平方メートル(14坪) |
| 間取り |
1階:居間(10畳)、台所、風呂、和室(2室) 2階:和室(2室) 納屋:トイレ |
| 築年数 |
ー |
| 製造/階 |
木造2階建 |
| 駐車スペース | |
| 設備など | 上水道:町上水道 下水道:町下水道 |
物件情報
- トイレは対面しているブロック造の建物にある。(小便器、和式大便器)
- 納屋(57.8平方メートル)、土蔵(66平方メートル)、隣接した農地(畑作可
特記事項
- 住宅内にトイレがない。
- 入居者様にキッチン、浴室の修繕工事を、ご負担いただき、その分家賃を安くして10年以上の契約とする。家主が固定資産税及び火災保険の加入を負担する
- 10年経過後、売却に関して協議する。(土地、建物は親族が所有)
周辺情報
- 駅(3.2キロメートル)
- 町役場(上中庁舎)(3.1キロメートル)
- 病院(3.0キロメートル)
- コンビニ(1.3キロメートル)
- 商店(1.3キロメートル)
- 保育園(2.5キロメートル)
- 小学校(1.2キロメートル)
- 中学校(3.6キロメートル)
気山(中村)【143】(新着物件!)(商談中)
建物外観1(母屋)
建物内観1(母屋LDK)
建物内観2(母屋玄関)
建物内観3(母屋和室)
建物内観3(母屋2階和室)
建物内観4(母屋浴室)
建物内観5(母屋トイレ)
間取り(母屋1階)
間取り(母屋2階)
建物外観2(離れ)
建物内観6(離れリビング)
建物内観7(離れ和室)
間取り(離れ1階)
間取り(離れ2階)
気山(中村)【143】建物外観1(母屋) (JPEG: 37.6KB)
気山(中村)【143】建物内観1(母屋LDK) (JPEG: 30.5KB)
気山(中村)【143】建物内観2(母屋玄関) (JPEG: 37.4KB)
気山(中村)【143】建物内観3(母屋和室) (JPEG: 35.5KB)
気山(中村)【143】建物内観4(母屋浴室) (JPEG: 20.4KB)
気山(中村)【143】建物内観5(母屋トイレ) (JPEG: 17.0KB)
気山(中村)【143】間取り(母屋1階) (JPEG: 52.3KB)
気山(中村)【143】間取り(母屋2階) (JPEG: 25.4KB)
気山(中村)【143】建物外観2(離れ) (JPEG: 45.0KB)
気山(中村)【143】建物内観6(離れリビング) (JPEG: 34.4KB)
気山(中村)【143】建物内観7(離れ和室) (JPEG: 37.0KB)
気山(中村)【143】間取り(離れ1階) (JPEG: 33.1KB)
気山(中村)【143】間取り(離れ2階) (JPEG: 15.6KB)
| 賃貸・売却の別 | 売却 |
|---|---|
| 希望金額 |
650万円 |
| 物件種類 | 一般住宅 |
| 敷地面積 | 926.38平方メートル |
| 建築面積 |
母屋:173.36平方メートル(52.44坪) 離れ:95.20平方メートル(28.79坪) |
| 間取り | 上記間取り図参照 |
| 築年数 |
|
| 製造/階 |
木造2階建 |
| 駐車スペース | 車庫1台、駐車スペース1台 |
| 設備など | 上水道:町上水道 下水道:町下水道 |
物件情報
- 本件は2筆の土地上に母屋と離れがあり、実質自宅が2軒あります。
特記事項
- 現状にて引き渡し(契約不適合責任免責)
- 土地の境界確定測量は行いません。
- 敷地内の倉庫と車庫も含まれます。
下吉田【142】
建物外観1
建物外観2
建物外観3
建物外観4
間取り(1階)
間取り(2階)
下吉田【142】間取り(1階) (JPEG: 127.1KB)
下吉田【142】間取り(2階) (JPEG: 72.0KB)
| 賃貸・売却の別 | 売却 |
|---|---|
| 希望金額 |
2000万円 |
| 物件種類 | 一般住宅 |
| 敷地面積 | 608平方メートル |
| 建築面積 |
1階:87.25平方メートル(26.4坪) 2階:34.00平方メートル(10坪) |
| 間取り | 4LDK |
| 築年数 |
築4年 |
| 製造/階 |
木造2階建 |
| 駐車スペース | 2台 |
| 設備など | 上水道:町上水道 下水道:町下水道 |
物件情報
- 令和2年9月に新築したが、親(母)は母屋におり、所有者は奈良県在住なので、処分することとした。
特記事項
- 土地が隣接する母屋と同じなので、分筆が必要(売主負担で行う)
- 上下水が母屋に合流しているので、町への加入と引込工事が必要(加入金99万円)
- 井戸水も使用できる。
周辺情報
- 駅(2.0キロメートル)
- 町役場(上中庁舎)(2.2キロメートル)
- 病院(2.3キロメートル)
- コンビニ(1.1キロメートル)
- 商店(1.4キロメートル)
- 保育園(2.4キロメートル)
- 小学校(1.5キロメートル)
- 中学校(2.4キロメートル)
気山(苧)【141】
建物外観1
建物外観2
建物外観3
建物外観4
建物外観5
建物周辺1
建物周辺2
建物周辺3
建物内観1
建物内観2
建物内観3
建物内観4
建物内観5
建物内観6
建物内観7
建物内観8
建物内観9
建物内観10
建物内観11
建物内観12
建物内観13
建物内観14
間取り(1階)
間取り(2階)
気山(苧)【141】建物内観1 (JPEG: 934.9KB)
気山(苧)【141】建物内観2 (JPEG: 904.0KB)
気山(苧)【141】建物内観3 (JPEG: 983.1KB)
気山(苧)【141】建物内観5 (JPEG: 904.8KB)
気山(苧)【141】建物内観6 (JPEG: 986.3KB)
気山(苧)【141】建物内観7 (JPEG: 1012.9KB)
気山(苧)【141】建物内観8 (JPEG: 981.0KB)
気山(苧)【141】建物内観9 (JPEG: 874.1KB)
気山(苧)【141】建物内観10 (JPEG: 395.7KB)
気山(苧)【141】建物内観11 (JPEG: 965.6KB)
気山(苧)【141】建物内観12 (JPEG: 838.4KB)
気山(苧)【141】建物内観13 (JPEG: 1010.6KB)
気山(苧)【141】建物内観14 (JPEG: 712.5KB)
気山(苧)【141】間取り(1階) (JPEG: 1.9MB)
気山(苧)【141】間取り(2階) (JPEG: 1.4MB)
| 賃貸・売却の別 | 賃貸 |
|---|---|
| 希望金額 |
相談 |
| 物件種類 | 一般住宅 |
| 敷地面積 | 770.53平方メートル |
| 建築面積 |
1階:132.3平方メートル(40.02坪) 2階:81.45平方メートル(24.63坪) |
| 間取り | 7LDK |
| 築年数 |
築47年 |
| 製造/階 |
木造2階建 |
| 駐車スペース | 有 |
| 設備など | 上水道:簡易水道 下水道:町下水道 |
物件情報
※当該物件に隣接して、農地(田・畑)、山林があります。
※建物内は綺麗に管理されています。
周辺情報
- 駅(1.5キロメートル)
- 病院(1.7キロメートル)
- 小学校(2.1キロメートル)
末野【140】
建物外観1
建物外観2
納屋
間取り
| 賃貸・売却の別 | 売却 |
|---|---|
| 希望金額 |
応談 |
| 物件種類 | 一般住宅 |
| 敷地面積 |
893.99平方メートル うち地目が農地 629平方メートル |
| 建築面積 |
1階:133平方メートル(40坪) 2階:54平方メートル(16坪) |
| 間取り | 8DK |
| 築年数 |
築48年 |
| 製造/階 |
木造2階建 |
| 駐車スペース | 車庫1台、駐車スペース1台 |
| 設備など | 上水道:町上水道 下水道:町下水道 |
物件情報
居宅のほか納屋、道具置場、土蔵あり。
特記事項
- 建物は、すべて未登記(旧の建物の登記が残っている)
- 売買時において、建物の登記、地目の変更は、持ち主で行う。
周辺情報
- 駅(5.1キロメートル)
- バス停(0.4キロメートル)
- 町役場(上中庁舎)(5.0キロメートル)
- 病院(4.9キロメートル)
- コンビニ(3.1キロメートル)
- 商店(3.1キロメートル)
- 保育園(4.4キロメートル)
- 小学校(3.0キロメートル)
- 中学校(5.5キロメートル)
横渡【118】《2025.4.25更新》
建物外観1
建物外観2
建物内観1
建物内観2
建物内観3
建物内観4
建物内観5
間取り(1階)
間取り(2階)
横渡【118】建物外観1の拡大画像 (JPEG: 408.3KB)
横渡【118】建物外観2の拡大画像 (JPEG: 467.1KB)
横渡【118】建物内観1の拡大画像 (JPEG: 311.4KB)
横渡【118】建物内観2の拡大画像 (JPEG: 283.4KB)
横渡【118】建物内観3の拡大画像 (JPEG: 267.5KB)
横渡【118】建物内観4の拡大画像 (JPEG: 254.7KB)
横渡【118】建物内観5の拡大画像 (JPEG: 256.7KB)
横渡【118】間取り(1階)の拡大画像 (JPEG: 311.4KB)
横渡【118】間取り(2階)の拡大画像 (JPEG: 136.9KB)
| 賃貸・売却の別 | 売買 |
|---|---|
| 希望金額 |
400万円 |
| 物件種類 | 一般住宅 |
| 敷地面積 |
1,314平方メートル |
| 建築面積 |
1階:132平方メートル(40坪) 2階:45平方メートル(14坪) |
| 間取り | 8DK |
| 築年数 | 86年 |
| 製造/階 | 木造2階建 |
| 駐車スペース | 駐車スペース3台 |
| 設備など | 上水道:町上水道 下水道:町下水道 |
物件情報
二階は中二階です。生活可能です。縁側先に庭がありますが、手入れが必要です。
特記事項
住宅及び納屋(コンクリートブロック造り)の内部に生活備品が有ります。
周辺情報
- 駅(0.5キロメートル)
- バス停(0.3キロメートル)
- 町役場(5キロメートル)
- 病院(0.3キロメートル)
- コンビニ(3キロメートル)
- 保育園(1キロメートル)
- 小学校(1キロメートル)
- 中学校(5キロメートル)
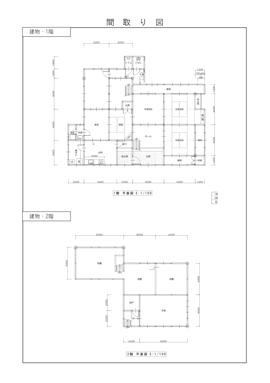
三方【116】(2025.11.04更新)
建物写真
間取り図
物件詳細
| 売買 | 38,000,000円 |
| 賃貸 | 80,000円(月額) |
三方【109】(商談中)
建物外観1
建物外観2
建物外観3
建物外観4
建物内観1
建物内観2
建物内観3
建物内観4
建物周辺1
建物周辺2
建物周辺3
間取り
三方【109】建物外観1の拡大画像 (JPEG: 5.7MB)
三方【109】建物外観2の拡大画像 (JPEG: 5.5MB)
三方【109】建物外観3の拡大画像 (JPEG: 5.2MB)
三方【109】建物外観4の拡大画像 (JPEG: 5.4MB)
三方【109】建物内観1の拡大画像 (JPEG: 3.1MB)
三方【109】建物内観2の拡大画像 (JPEG: 3.2MB)
三方【109】建物内観3の拡大画像 (JPEG: 3.0MB)
三方【109】建物内観4の拡大画像 (JPEG: 4.0MB)
三方【109】間取りの拡大画像 (JPEG: 163.5KB)
| 賃貸・売却の別 | 売却 |
|---|---|
| 希望金額 | 290万円 |
| 物件種類 | 一般住宅 |
| 敷地面積 | 1,034平方メートル(313坪) |
| 建築面積 | 74.4平方メートル(1階14.3坪/2階8.2坪) |
| 間取り | 3DK |
| 築年数 | 27年 |
| 製造/階 | 木造2階建 |
| 駐車スペース | 有り |
| 設備など | 上水道:町上水道 下水道:町下水道 |
物件情報
・築:27年 1997年(平成9年)6月築
・間取り:3DK(当初は住居として使用。現在は納屋として使用)
・トイレ:無し(水洗として町下水道に接続可能→至近に下水道管有)
・住居としてDIY物件に最適で、リフォーム相談可能(大手メーカー設計・施工→売主会員割引使用)
特記事項
・JR三方駅より徒歩3分
・近傍100m内には交番の他、福井銀行(三方支店)やお食事処、美容院 等有。
・当用地は当初、畑と果樹園として使用していましたが、約300坪もあり2世帯住宅としての新築も可能。
・敷地内奥には、直径1mを超える「欅(ケヤキ)」大木があり価値有。その他、2本の「榊(サカキ)」有。
周辺情報
- 駅(0.2キロメートル)
- バス停(0.1キロメートル)
- 町役場(1.1キロメートル)
- 病院(1.2キロメートル)
- コンビニ(1.3キロメートル)
- 商店(1.0キロメートル)
- 保育園(1.1キロメートル)
- 小学校(0.5キロメートル)
- 中学校(0.8キロメートル)
- 交番(0.1キロメートル)
三宅【108】《2022.10.13更新》《2022.11.1更新》《2023.9.4更新》《2023.10.6更新》《2024.5.21更新》
建物外観1
建物外観2
周辺景観
(景色の良い里山に建つ古民家)
建物内観1
建物内観2
建物内観3
間取り
三宅【108】建物外観1の拡大画像 (JPEG: 90.4KB)
三宅【108】建物外観2の拡大画像 (JPEG: 100.7KB)
三宅【108】周辺景観の拡大画像 (JPEG: 90.3KB)
三宅【108】建物内観1の拡大画像 (JPEG: 77.1KB)
三宅【108】建物内観2の拡大画像 (JPEG: 81.3KB)
三宅【108】建物内観3の拡大画像 (JPEG: 76.2KB)
三宅【108】間取りの拡大画像 (JPEG: 142.1KB)
| 賃貸・売却の別 | 売却または賃貸 |
|---|---|
| 希望金額 |
売却:178万円 賃貸:1.5万円(月額) |
| 物件種類 | 一般住宅 |
| 敷地面積 | 566.63平方メートル |
| 建築面積 | 110.74平方メートル(33.49坪) |
| 間取り | 掲載の間取り画像のとおり |
| 築年数 | 154年(明治元年築) |
| 製造/階 | 木造2階建 |
| 駐車スペース | 有り(4台分) |
| 設備など | 上水道:町上水道 下水道:ー |
物件情報
眺望景色の良い角地の古民家。国登録文化財「三宅区火の見やぐら」の建つ歴史有る三宅地区内。
駐車スペースが広く、家庭菜園可。要改装。古民家再利用、DIY等。
公共施設、飲食店、スーパー迄車10分以内。
特記事項
古民家再生に興味のある方、賃貸格安にてご提案いたします。(要面談)
周辺情報
- 駅(2キロメートル)
- バス停(1キロメートル)
- 町役場(上中庁舎)(1.7キロメートル)
- 病院(1.4キロメートル)
- コンビニ(1キロメートル)
- 商店(1.7キロメートル)
- 大型スーパー(2.2キロメートル)
- 保育園(2.1キロメートル)
- 小学校(2.7キロメートル)
- 中学校(2.2キロメートル)
天徳寺【107】《2022.12.20更新》《2023.11.14更新》《2025.2.6更新》
建物外観1
建物外観2
敷地外観
建物内観1
間取り1階(左)、2階(右)
天徳寺【107】建物外観1の拡大画像 (JPEG: 566.9KB)
天徳寺【107】建物外観2の拡大画像 (JPEG: 559.4KB)
天徳寺【107】敷地外観の拡大画像 (JPEG: 604.0KB)
天徳寺【107】建物内観1の拡大画像 (JPEG: 584.8KB)
天徳寺【107】間取り1階の拡大画像 (JPEG: 853.3KB)
天徳寺【107】間取り2階の拡大画像 (JPEG: 862.8KB)
| 賃貸・売却の別 | 売却 |
|---|---|
| 希望金額 | 1,495万円 |
| 物件種類 | 一般住宅 |
| 敷地面積 | 954平方メートル |
| 建築面積 | 202.97平方メートル(1階40.94坪/2階20.45坪) |
| 間取り | 6LDK |
| 築年数 | 25年 |
| 製造/階 | 木造2階建 |
| 駐車スペース | 有り |
| 設備など | 上水道:簡易水道 下水道:町下水道 |
物件情報
288坪の敷地に大きな庭。61坪の大きな住宅、全面リフォーム済。
ほぼ未使用の2階に新たに間仕切りを設け部屋を新設しました。
場所は瓜割の滝近くの閑静な住宅地内。
周辺情報
- 駅(1キロメートル)
- 町役場(上中庁舎)(1.3キロメートル)
- 病院(1.4キロメートル)
- 保育園(0.7キロメートル)
- 小学校(0.5キロメートル)
- 中学校(0.8キロメートル)
島の内【99】
建物 外観
建物 内観1
建物 内観2
間取り 1階
間取り 2階
島の内【99】建物 外観の拡大写真 (JPEG: 39.8KB)
島の内【99】建物 内観1の拡大写真 (JPEG: 40.0KB)
島の内【99】建物 内観2の拡大写真 (JPEG: 86.6KB)
島の内【99】間取り 1階の拡大画像 (JPEG: 33.5KB)
島の内【99】間取り 2階の拡大画像 (JPEG: 46.2KB)
| 賃貸・売却の別 | 売却物件 |
|---|---|
| 希望金額 | 1,000万円 |
| 物件種類 | 一般住宅 |
| 敷地面積 | 776.7平方メートル |
| 建築面積 | 198.48平方メートル(1階34,24/2階25.79坪) |
| 間取り | 8DK |
| 築年数 | - |
| 製造/階 | 木造2階 |
| 設備など | 上水道:町上水道 下水道:町下水道 |
(注意)過去に大雨で、湖の水面が上昇した時、床下浸水したことがある。
物件情報
- 島の内4-7-1 宅地 288.75平方メートル
- 島の内4-7-3 宅地 211.37平方メートル
- 島の内4-8-1 宅地 157.38平方メートル
- 島の内4-8-3 宅地 119.20平方メートル
周辺環境
- 駅(5.7キロメートル)
- バス停(0.3キロメートル)
- 町役場(5キロメートル)
- 病院(5キロメートル)
- 保育園(0.6キロメートル)
- 小学校(0.5キロメートル)
- 中学校(5.5キロメートル)
塩坂越【49】
建物全景
内観
間取り図
塩坂越【49】建物全景の拡大写真 (JPEG: 239.5KB)
塩坂越【49】内観の拡大写真 (JPEG: 167.7KB)
塩坂越【49】間取り図の拡大画像 (JPEG: 59.2KB)
| 賃貸・売却の別 | 売却物件 |
|---|---|
| 希望金額 | 250万円 |
| 物件種類 | 一般住宅 |
| 敷地面積 | - |
| 建築面積 | 182平方メートル |
| 間取り | 9DK |
| 築年数 | 築後43年 |
| 製造/階 | 木造2階建 |
| 設備など | 上水道:簡易水道 下水道:町下水加入なし |
海に面した集落にあります。
物件に関するご相談には、できるだけ対応したいと考えています。
お気軽にお問合せください。
物件情報
- 駐車場なし
- 元民宿
周辺環境
- JR小浜線三方駅(12.0キロメートル)
- レイクヒルズ美浜病院(18.0キロメートル)
- コンビニ(12.0キロメートル)
- 保育園(5.0キロメートル)
- 小学校(5.0キロメートル)スクールバスあり
- 中学校(13.0キロメートル)スクールバスあり
「オンライン移住相談」受付中!
スマホやPC・タブレットなどでご自宅やお好きな場所からご相談いただける「オンライン移住相談」を受け付けております。 若狭町での暮らしに興味がある方は、ぜひお気軽にお問い合わせください。
- Web会議ツール「Zoom」を使用します。
- お申し込みは、お電話もしくはメールにてお問い合わせください。
若狭町空き家バンク登録申請様式
登録様式(第1号)-Word (Wordファイル: 26.0KB)
登録様式(第2号)-Excel (Excelファイル: 230.0KB)
登録様式(第1号)-PDF (PDFファイル: 56.5KB)
登録様式(第2号)-PDF (PDFファイル: 216.7KB)
お電話でのお問い合せ
0770-45-9112
メールでのお問い合せ
この記事に関するお問い合わせ先
観光まちづくり課
電話番号 0770-45-9112
メールフォームからのお問い合わせ

更新日:2025年11月04日